Vindsvåning Rörstrandsgatan
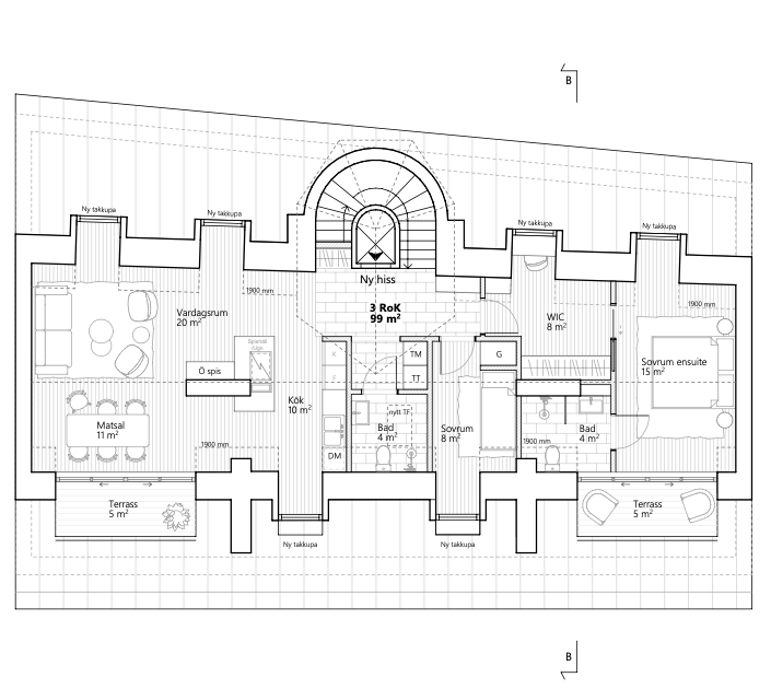
Planritning av lägenhet i gatuhuset med utsikt mot Kungsholmen och Karlbergs slott. Lägenheten har tre sovrum, separat tvättstuga samt bastu. Hiss direkt in i lägenheten.

Planritning av lägenhet i gatuhuset med utsikt mot Kungsholmen och Karlbergs slott. Lägenheten har tre sovrum, separat tvättstuga samt bastu. Hiss direkt in i lägenheten.

Nu finns möjlighet att inreda ditt drömbostad efter egna önskemål i en förening med god ekonomi nära vimlet på Vasastans finaste gata. Byggstart för båda dessa lägenheter beräknas ske i februari 2026.
Planritning av lägenhet i gårdshuset. Design och layout projekteras efter fastighetens utformning i samarbete med våra arkitekter på Atelje Nord. Hiss direkt in i lägeheten.
Ett urval av lägenheter projekterade, byggda och sålda i vår regi.
Många fastigheter har ytor som är oanvända eller svåra att hyra ut.

Vi säljer färdiga lägenheter till privatpersoner i olika storlekar och prisklasser.
Design och layout projekteras efter fastighetens utformning i samarbete med våra arkitekter.
Vissa projekt är utöver det vanliga och kräver hantverk av högsta kvalitet.
Även små ytor går att projektera effektivt. Här har vi byggt lägenheter i före detta piskrum i fastigheter från 60-talet.
Alla projekt är unika och kräver att miljö och boende integreras på bästa sätt.
Påbyggnad på befintligt tak med utsikt över Stockholms stad.
Vid planering av layout behöver man ta häsyn till befintliga skorstenstockar, vinklar och takhöjd.
Här har kunden beställt öppen spis som ökar trivseln kalla vinterkvällar.
Vi är passionerade när det kommer till att leverera högkvalitativa lägenheter och andra utrymmen med en stark inriktning på excellent hantverk i samarbete med väletablerade underentreprenörer. Vi optimerar administrativt och faktiskt hantverk för att säkerställa att våra projekt går som planerat, från koncept till färdig produkt. Våra projekt har realistiska tidsplaner och skriftliga arbetsrutiner för våra hantverkare som rutinmässigt följs upp. Garantier enligt avtal efterlevs och självklart följer vi svenska byggnormer och arbetsrättsliga regler. För oss är kvalitet och hantverk inte bara ord - det är vår verklighet.
Vi strävar efter att göra köpupplevelsen för våra kunder enkel och problemfri. Genom samarbeten med fler av Sveriges bästa mäklare, med layouter skapade av våra arkitekter optimerar vi boytor och sätter både föreningen och den kommande kunden i fokus i vårt arbete. Genom hela byggprocessen är Wibom Apartments mål är att vägleda alla parter och se till att målet nås så effektivt som möjligt. Vi ser varje interaktion med våra samarbets-partners och kunder som en möjlighet att bygga starka och långvariga relationer, vilket är grunden för allt vi gör.
Vi är specialiserade på att tillhandahålla färdiga lägenheter som är redo för direkt inflyttning till privatkonsumenter. Med noggrant planerade och designade bostäder strävar vi efter att erbjuda smarta val som förenklar beslutet för våra kunder. Vårt mål är att förenkla processen för dem som letar efter ett nytt hem med certifierade och miljövänliga materialval. Med ett fokus på trygghet och kvalitet strävar vi ständigt efter att möta och överträffa förväntningarna hos våra kunder och skapa en positiv upplevelse för de som väljer att göra sin nästa flytt med oss.